;

Historic Beaconsfield Hotel Tasmania only $590,000 offers over ideal Hotel BnB Cafe Restaurant

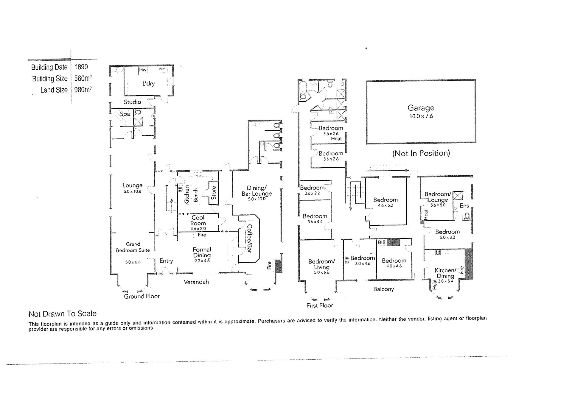
Magnificent character property, suitable for a variety of uses, could be a licensed hotel again with the flick of a switch, a most attractive private residence, a guest house or as mostly recently, as a licensed cafe. With features such as a Huon pine staircase and Baltic pine floors, approx 12 foot ceilings, wide skirting boards, exotic timber floor in the ballroom/dinning room, excellent well equipped kitchen, new bathrooms, renovated customer toilets and much, much more. Beautiful ambiance, nostalgia and old-world feeling, comes with all plant and equipment and most (not all) other items. There is still GOLD in Beaconsfield and there is a very good chance the mine is reopening,in the scenic Tamar Valley, on the wine route, on the main busy West Tamar Road, on the way to many tourist attractions, with a sizable local population. Representing excellent value, probably best value hotel opportunity in Tasmania, for less than the price of many homes, checkout the floor plan, 11 bedrooms, could possibly be 13 bedrooms, 3 bathrooms, walk-in cool room etc,etc Original hotel built on this site in the 1880s,burnt down in 1904 and was rebuilt as a double story hotel in 1907 by J.T. Gunns. The building is heritage listed and as good as the day it was built, currently not operating, would be very easy to recommence business. If you are serious, have been contemplating making the move to Tasmania, or having a career change, do yourself a favour, come and inspect this beautiful property and you will experience the value, character, atmosphere and golden opportunity on offer here.

For purchases who appreciates a bargain and upside Contact Paul Scott at pauls@tasbps.com.au INTENDING PURCHASERS TO MAKE THEIR OWN INVESTIGATIONS AND ENQUIRIES IN RELATION TO THE BUSINESS AND NOT TO RELY UPON WARRANTY OR STATEMENT MADE BY THE VENDOR OR BY ANYONE ON HIS/HER BEHALF; Please Note: All figures quoted are approximate.

Address 141 Weld St, Beaconsfield
Price SOLD for $620,000
Property Type Business
Property ID 329
Category Accommodation/Tourism, Accommodation/Tourism, Leisure/Entertainment

Agent Details

Paul Scott photo

Paul Scott

0477771098
View Profile